plus bauplanung
plus bauplanung projekte büro publik peter kontakt instagram

Wettbewerb
GS und KiTa Norderstedt

plus bauplanung

Die Setzung der Schulgebäude folgt den pädagogischen Vorgaben und wird als Schule mit eigenständigen Clusterpavillons dargestellt. Die Pavillongebäude der Grundschule bilden ein „Schuldorf“, die einzelnen Pavillons werden vom gemeinsamen „Anger“ erschlossen.

Die drei unterschiedlichen Nutzungen (Grundschule, Kindertagesstätte und Sporthalle) bilden mit Ihren Gebäudekanten einen städtischen Platz, der direkt vom Aurikelstieg aus erreicht wird.

 

Die Gruppe der Schulpavillons und das Hauptgebäude der Schule bilden für sich einen „Dorfanger“, der von den SchülerInnen als gemeinsame Hoffläche genutzt wird. Eine zukünftige Erweiterung der Schule ist mit einem weiteren Pavillon im Westen auf dem später freiwerdenden Grundstück, ohne Einschränkungen für den Schulbetrieb zu realisieren. Die Erweiterung der Mensa ist unter dem auskragenden Dach realisierbar.

 

Die Freianlagenplanung überlagert die städtebauliche Grundstruktur zunächst mit einer amorphen Formensprache. Unter weitgehender Einbeziehung der Bestandsbäume entstehen zwischen den einzelnen Baukörpern differenzierte und sich durchdringende Raumabfolgen, befestigte und bespielbare Flächen wechseln sich mit Grünflächen ab.

 

Grundsätzlich sollen in den Außenanlagen natürliche Materialien Verwendung finden. Die Inseln werden mit Findlingen eingefasst, Spielgeräte sollten aus Robinienholz gefertigt sein und die Sitzmöglichkeiten werden in Form von Baumstämmen ergänzt.

Grundriss Erdgeschoss

Der Hauptzugang zur Schule erfolgt über das zweigeschossige Hauptgebäude des Schuldorfs.

Im Hauptgebäude befinden sich die zentralen Einrichtungen wie Aula mit Essensbereich, die allgemeinen naturwissenschaftlichen und musischen Einrichtungen, sowie die Verwaltung.

 

Die Aula als Veranstaltungsort ist vom Platz aus zugänglich und öffnet sich großzügig zum Schulanger. Die weiteren Nutzungen gruppieren sich darum. Der Musikraum liegt etwas erhöht und lässt sich als Bühnenraum für Veranstaltungen zur Aula hin öffnen. Die
Küche für den Mensabetrieb liegt auf der Nordseite und kann direkt angeliefert werden.
Die Unterrichtsräume orientieren sich zum Schulhof.

 

Ansicht West

Klassenpavillons

Die Pavillons mit jeweils vier Klassen und eigenem Zugang und Toiletten funktionieren als eigenständige Einheiten, es sind verschiedene Formen der Grundrissorganisation möglich, allen gemeinsam ist die Grundfläche eines Quadrats. Die Anordnung der Klassenräume an den Gebäudeecken ermöglicht die zweiseitige Belichtung und Querlüftung der Räume.

Alle Räume sind über die Fassade und Oberlichter natürlich belichtet und belüftet.

 

Kindertagesstätte

Der zweigeschossige kompakte Gebäudeteil der KITA arrondiert den Platz im östlichen Bereich. Der Zugang, unter einem wettergeschützten auskragenden Obergeschoss, liegt am zentralen Platz.

Im Erdgeschoss befinden sich die Räume des Krippenbereichs, die gemeinsamen Einrichtungen
wie Foyer, Mehrzweck- und Essbereich, sowie die Räume für Verwaltung und Personal.

Die Räume öffnen sich zum Garten, die individuellen Außenbereiche für die Krippenkinder grenzen unmittelbar an die Spielflächen im Garten.

Im Obergeschoss befinden sich die vier Gruppen des Elementarbereichs. Den Räumen ist eine großzügige Dachterrasse vorgelagert, der Garten ist über Außentreppen direkt zugänglich.
Die Gruppen sind in die einzelnen Gruppenbereiche aufgeteilt. Die jeweiligen Garderoben sind den Gruppen zugeordnet.

 

Sporthalle

Die Sporthalle liegt zwischen der Kita und Grundschule und schließt den Platz im südlichen Bereich ab, der Zugang liegt gut erkennbar unter dem auskragenden Dach. Über das Foyer ergeben sich Blicke in die Sporthalle, über eine Treppe erfolgt der Zugang zur Tribüne.

Die Umkleiden und Sporthallen werden über einen Gang getrennt, die Umkleiden liegen an der Außenwand und sind natürlich belichtet. Die Sporthalle erhält über Fassade und Oberlichter gleichmäßiges Tageslicht.

Perspektive Anger

Ausbaumaterialität

Die Auswahl der Materialien erfolgt entsprechend den Kriterien von Nachhaltigkeit und Robustheit..

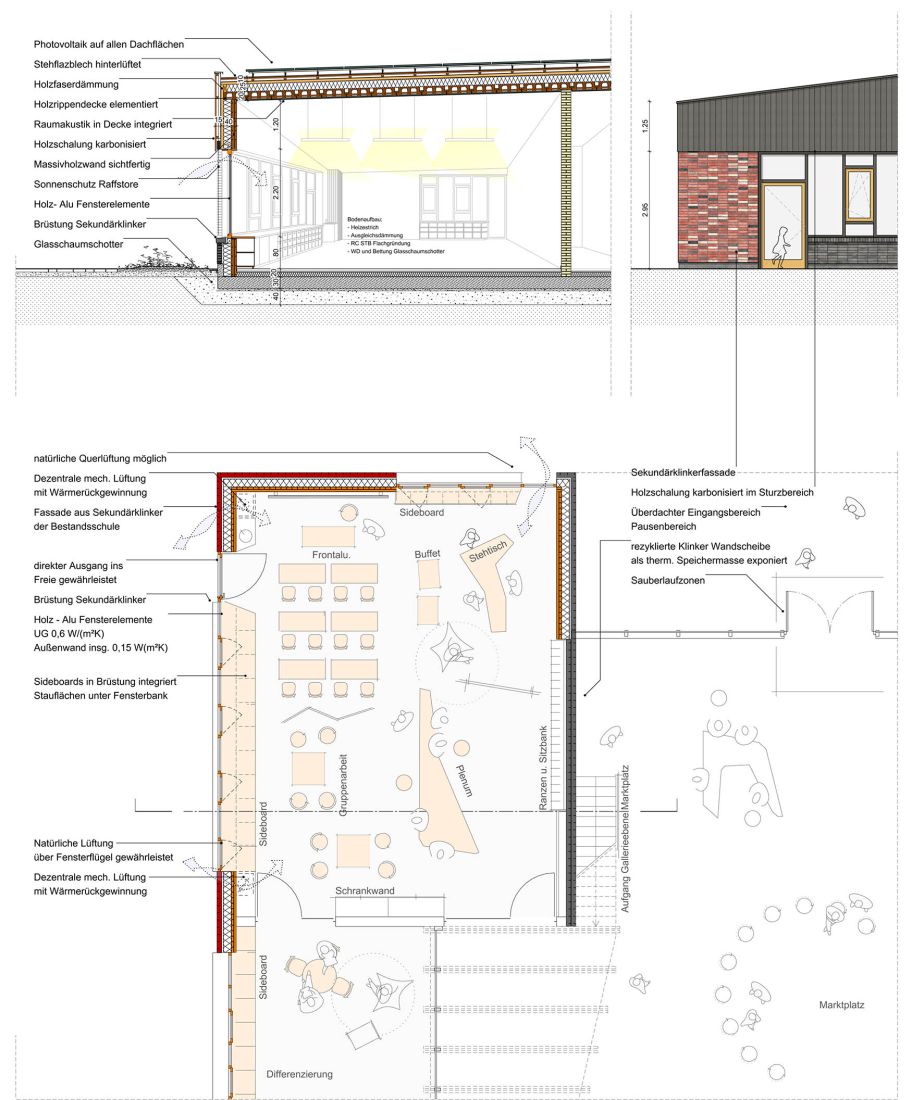
Primäre Materialien, wie großflächige Holzwände und Wandflächen aus recyceltem Klinker des sind abwechselnd mit verputzten Flächen haptisch erlebbar und bestimmen die Atmosphäre. Zur Verbesserung der Raumakustik werden Decken- und Wandabsorber aus Holz und Holzwerkstoffen, sowie absorbierende Pinnwände eingesetzt. Farbige Bodenbeläge und Holzmöbel schaffen eine wohnliche behagliche Atmosphäre in den Innenräumen. In den öffentlichen Bereichen wird der Heizestrich mit pigmentierten Sichtoberfläche eingesetzt.

Ökologische und Energetische Optimierung

Der immer deutlicher werdende Klimawandel und sich rapide ändernde politische Rahmenbedingungen bringen zusätzliche Aspekte und Zielsetzungen in die Diskussion um nachhaltigere Gebäude ein.

Neubauten müssen einen positiven Beitrag auch im Sinne der Nachhaltigkeit für die Umwelt erbringen. Themenbereiche wie Netzdienlichkeit, Energieautarkie, Materialeffizienz und Kreislaufwirtschaft, CO2 Emissionen müssen berücksichtigt werden, priorisiert und sich in der Planung entsprechend manifestieren. Bei der Vielzahl der aktuell teilweise sehr volatilen Randbedingungen stellt das eine besondere Herausforderung dar. Der Entwurf für den Neubau OGGS und Kita Lütjenmoor in Norderstedt stellt ausgehend vom Material, von kompakten, hochgedämmten Baukörpern bis zur optimierten technischen Ausstattung und der damit abgestimmten maximierten Nutzung natürlicher Ressourcen ein Gesamtpaket dar, das diesen vielfältigen Anforderungen gerecht werden soll.

Materialien sind nach CO2 Emissionen priorisiert und entsprechend den Anforderungen ausgewählt.

Holz wird aufgrund seiner günstigen CO2 Bilanz bevorzugt eingesetzt.

Als Beitrag zur Nachhaltigkeit schlagen wir vor, das vorhandene robuste Klinkermaterial der Bestandsschule als ein ortsbezogenes Sekundärklinker wiederzuverwenden.

Der Einsatz von Beton bleibt aufdas konstruktiv sinnvolle Maß eingeschränkt.

Modellfoto

Modellfoto Anger

projektdaten

adresse Norderstedt

wettbewerb 2023

entwurf 2023

weitere projekte

311

Mensa Schulzentrum Neckartenzlingen

Neckartenzlingen

2015

274

Internationale Friedensschule Köln

Köln

2014

082

Sporthalle OSO

Heppenheim

1996

132

Waldorfschule Kirchheim Unterstufenbau

Kirchheim u. Teck

1998

439

Grundschule Hohenberg Rottenburg

Rottenburg am Neckar

2020

alle projekte

WB Grundschule und KiTa Norderstedt

plus bauplanung

plus bauplanung gmbh
goethestraße 44
72654 neckartenzlingen
info@plusbauplanung.de
07127 92070

impressum cookie einstellungen datenschutz

Diese Seite verwendet Cookies. Mehr Informationen und Einstellungen hier.